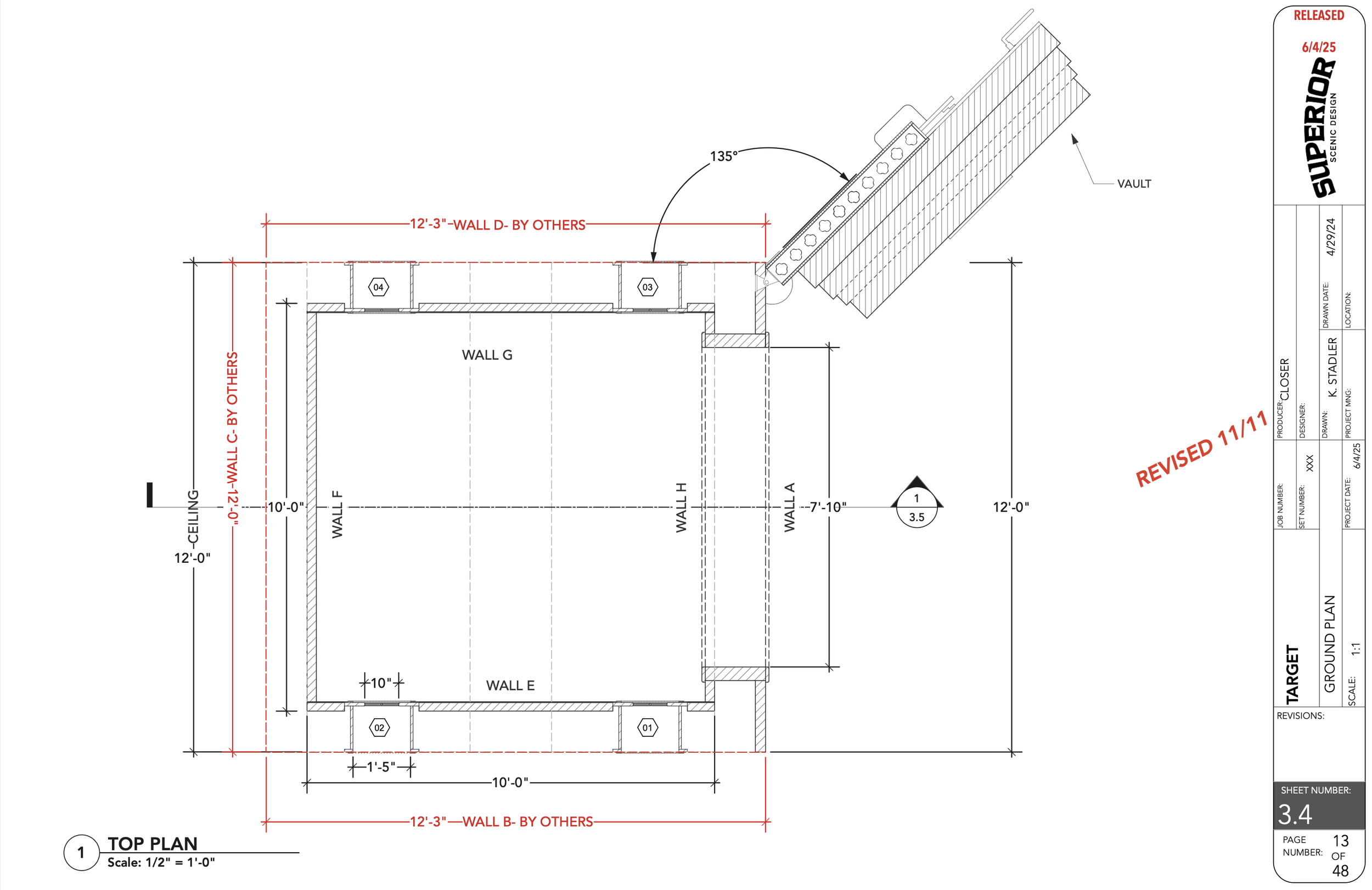
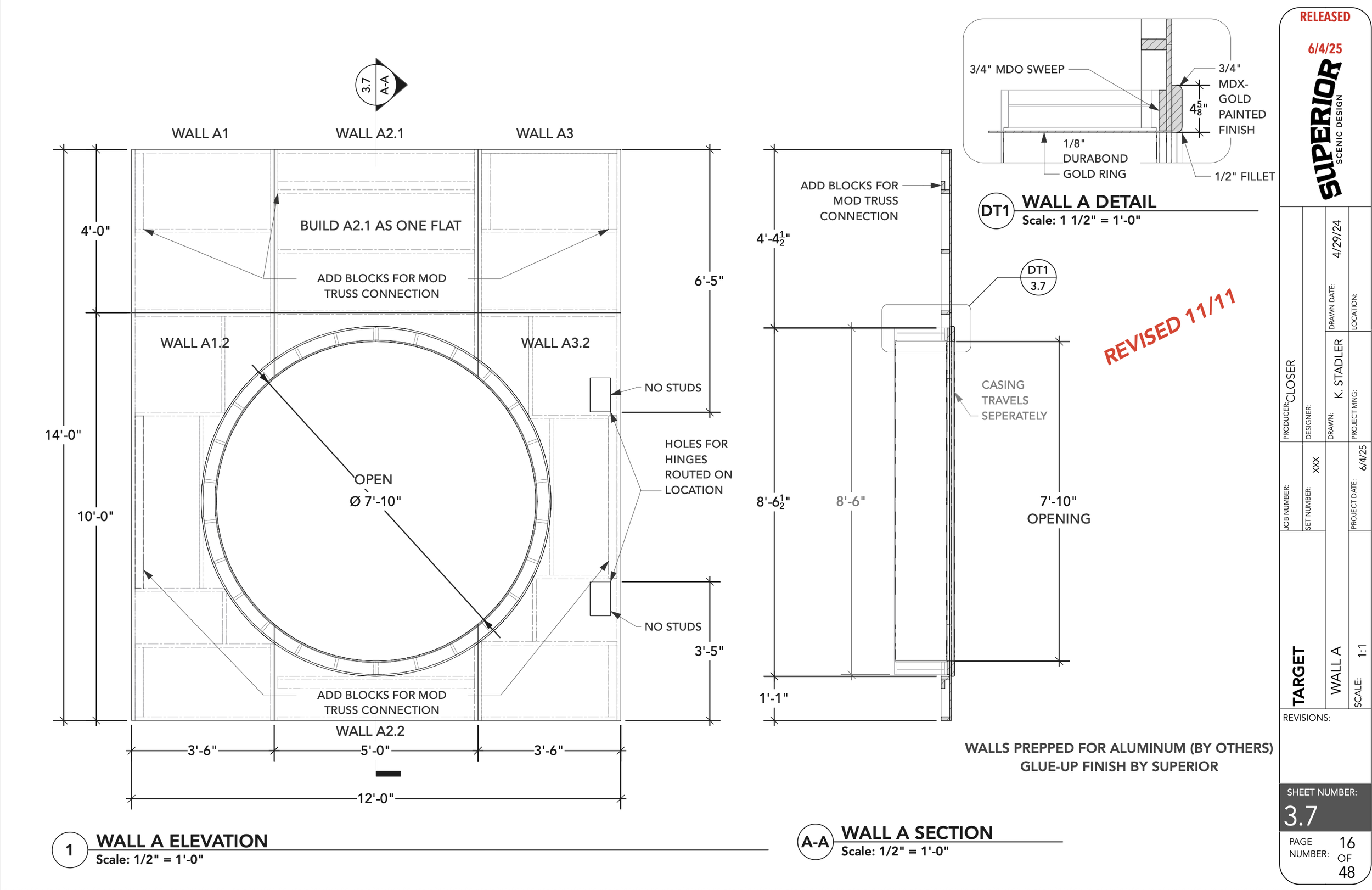
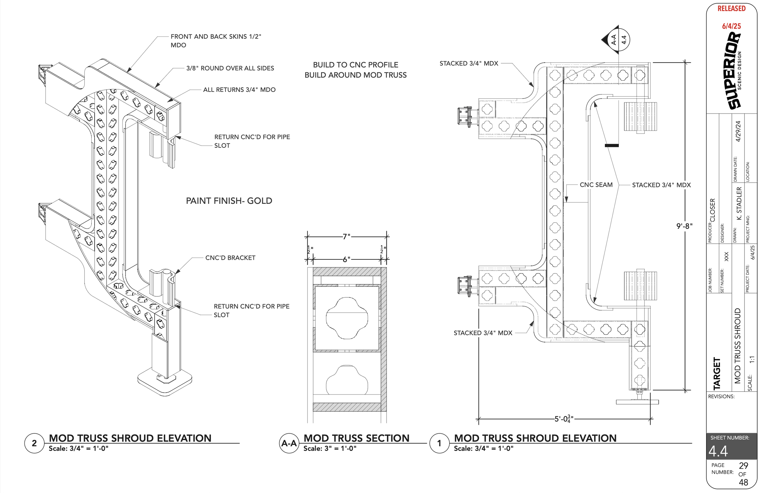
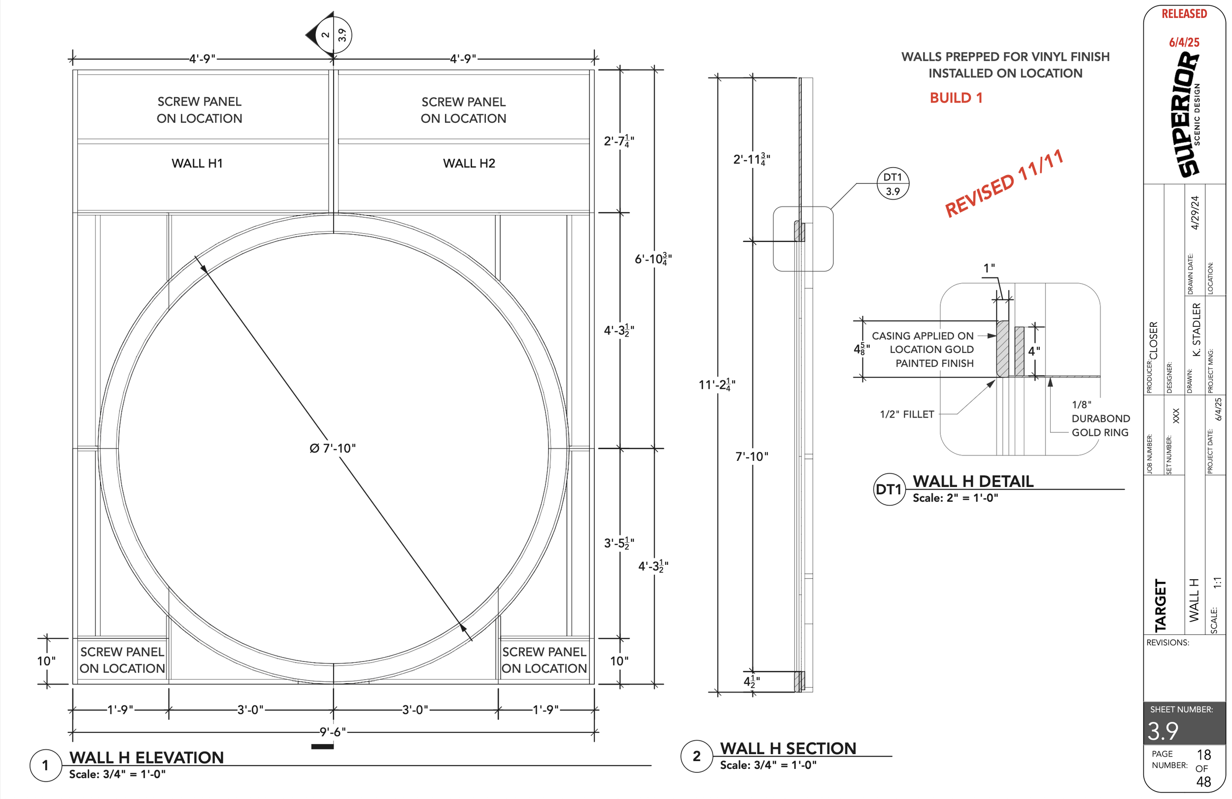
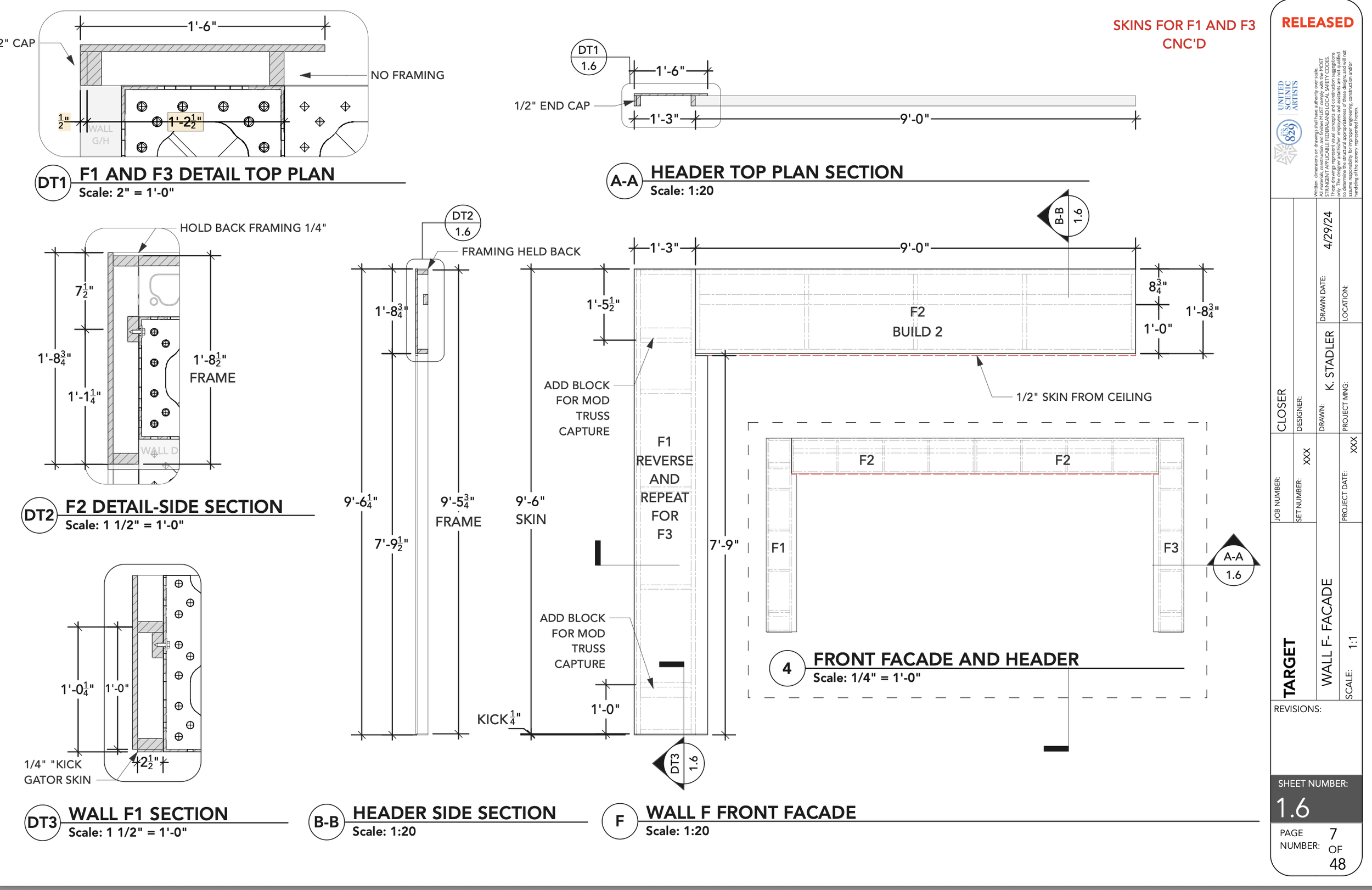
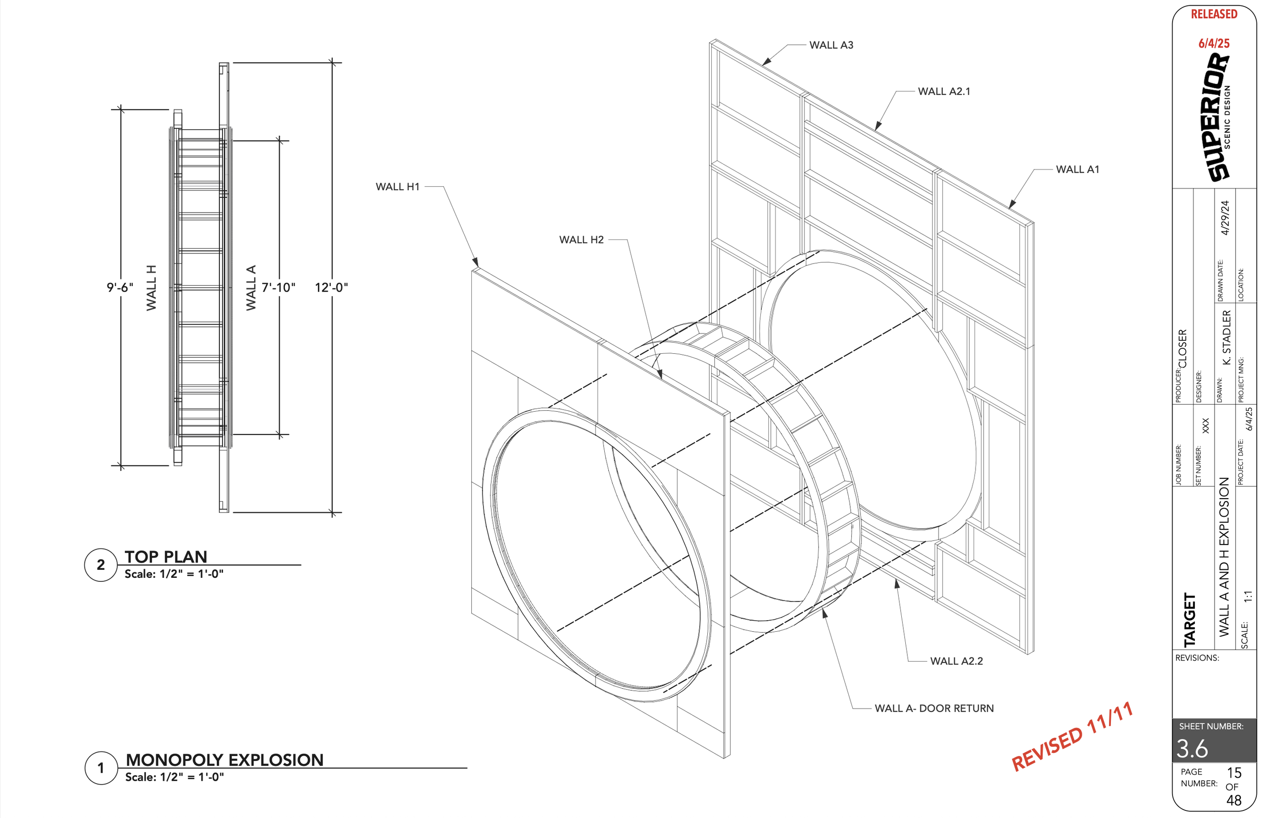
Target Pop Up

In collaboration with Superior Scenic Design

Previous
Previous

L'Agence NYFW 2026

Next
Next

Revolving Door